관악 더 밀리안 아파트 조합원 되볼까? : 지역주택조합

관악 더 밀리안 아파트 조합원 되볼까? : 지역주택조합
신림지역주택조합(가칭)은 서울 관악구 신림동 1480-1번지 일대에서 ‘관악 더 밀리안’ 아파트의 조합원을 8월부터 모집할 예정이라고 하네요. 보다 자세한 정보는 아래에서 확인하세요.
관악 더 밀리안 개요
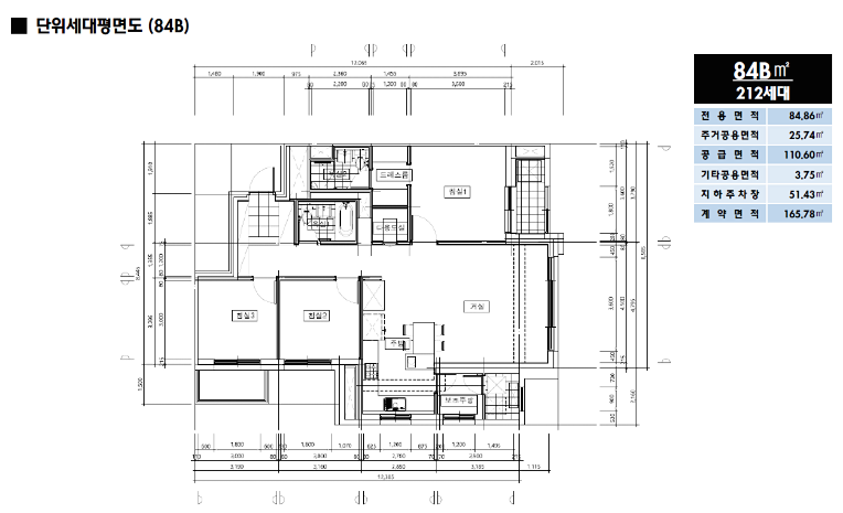
관악 더 밀리안은 총 790가구로 계획됐으며, 1∼3인 가구가 급격히 늘어나고 있는 지역 특성을 반영해 △59㎡ 528가구 △84㎡ 262가구 등 전 타입 중소형으로 구성

|
주택법 시행령 개정안 추진 등으로 사업 안정성과 투명성이 강화된 지역주택 아파트가 선보일 예정이어서 관심이 집중되고 있다. 최근 집값이 천정부지로 치솟고 있는 상황에서 수도권 지역에서 내집마련 대안으로 떠오르고 있는 지역주택조합 아파트가 상대적으로 주거 마련 부담이 덜하기 때문이다. |

관악 더 밀리안 직주근접 단지
관악 더 밀리안은 서울 주요 업무지역 접근성이 우수한 직주근접 단지다. 강남과 여의도는 물론, 구로디지털단지와 가산디지털단지 등지로 출퇴근하기 편리하다. 요즘 핫한 다른 지역 분양단지 따끈한 정보는 아래에 있습니다.
시흥IC가 인근에 위치해 있고, 남부순환로를 통해 가산동과 서울대입구, 양재, 대치, 잠실 등으로의 이동이 수월하다.

관악 더 밀리안 교통환경
신림∼봉천터널이 완공되면 서울 동서축 교통여건이 개선돼 혼잡 시간대의 교통량이 분산되고 강남 및 주요 업무지역 접근성이 더욱 향상될 전망이다.

단지 앞 난곡로변에 버스정류장이 위치하며, 지하철 2호선 신대방역도 도보거리 내에 있다. 영등포·여의도 등까지 환승 없이 한 번에 이용 가능한 신안산선 (2024년 완공예정)도 지근거리에 들어선다. 관악 더 밀리안에 대해서 궁금하신 분들은 아래를 참고하세요.
단지에서 약 150m 거리에 경전철 난곡선 난곡사거리역(가칭)이 예정돼 있다.

관악 더 밀리안 교육 인프라
관악 더 밀리안은 교육환경도 빼어나다. 도보 5분 거리에 미성초·난곡중·신림고가 있다.

관악 더 밀리안 생활편의시설
생활편의시설인 롯데하이마트·신림중앙시장이 도보거리에 있으며, 롯데백화점과 이마트·홈플러스·현대아울렛 등도 차량 10분 거리 내에 자리한다.

미성동주민센터와 금천세무서, 보라매병원 등 관공서와 병원도 가깝다.

관악 더 밀리안 모델하우스 홍보관
홍보관은 서초구 방배동 851-3에 마련될 예정이다.

‘관악 더 밀리안’ 은 1~3인 가구가 선호하는 중소형 위주로 구성된 직주근접 아파트로, 실주거여건도 뛰어나다”

“최근 전세값 폭등과 공급난이 겹쳐 수도권 주거비용 부담이 커졌다."

"서울 내집마련을 준비중인 실수요자들이 조합원에 관심을 가질까?"


지금까지 관악 더 밀리안 아파트 조합원 되볼까? : 지역주택조합에 대한 정보였습니다.
'부동산과 금융' 카테고리의 다른 글
| 신목동 파라곤 평면도 분양가 청약 계약금 (0) | 2020.08.07 |
|---|---|
| 조합원 입주권 취득세 재산세 종부세 양도세 (0) | 2020.07.31 |
| 브라운스톤 부평 삼산동 분양가 청약 총정리 (0) | 2020.07.31 |
| 대구 재난지원금 2차 신청 지급시기 사용처 (0) | 2020.07.31 |
| 농협 긴급재난지원금 잔액조회 쉽게하기 (0) | 2020.07.30 |